AJP FLBdisplay 67 

Frontline Builders' Shome Home 2022

Frontline Builders completed its very first Show Home in 2022.

This beautiful home gave Frontline Builders a chance to collaborate with amazing suppliers, sub-contractors and other industry personnel whilst showcasing the skills of the Frontline Builders' team.

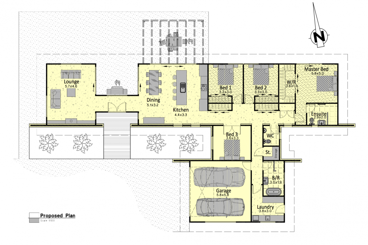
The 238.6 square metre home was designed by Imagine Architecture to grace the surrounding area in perfect unison with the sun.  This required the home's front facade to extend perpendicular to north, ensuring the home would maximise the capture of the sun and day light hours.  This unique positioning of the home, coupled with an extra thick wall cavity to allow for more insulation, meant that the home required no heating...a tall ask considering the home is situated in Egmont Village!

The home was clad with brick and cedar.  Cedar is a natural, sustainable and durable softwood with a beautiful grain.  The seville brick which completed the external cladding was not only warm and beautiful but created a fantastic contrast with the timber.  Features included:

  • timber (cedar) and brick cladding
  • gas hot water
  • tailored kitchen by Prestige Kitchens featuring automatic lighting and maximising storage
  • built-in wardrobes in three bedrooms
  • powder room
  • fully insulated garage door
  • garage carpet
  • Mr Ralph feature lighting
  • interior design by Haus of Design
  • design by award winning Imagine Building Design.

 

WHY USE FRONTLINE BUILDERS TO BUILD YOUR DREAM HOME?

Building a new home with us is EASY!

Building with us means that Wade and our experienced foremen will arrange every step of the build for you.  We can introduce you to designers and architects, or we can work with your own architect or designer.

Your home quite simply WILL NOT be the same as every other new home on the street and your home will be designed and tailored to completely adapt to its surroundings, outlying areas and views.  It will truly be a one-off design, tailored to your needs and requirements.